Array
(
    [id] => 7052
    [pid] => 1
    [sorting] => 1280
    [tstamp] => 1775029239
    [title] => Großzügiges Zuhause mit flexibler Raumaufteilung – perfekt für Familien oder Mehrgenerationenwohnen
    [alias] => h26139
    [baujahr] => 1957
    [nutzflaeche] => 102.93
    [gesamtflaeche] => 0
    [miete_zzgl_nk] => 0
    [miete_inkl_nk] => 0
    [plz] => 41466
    [ort] => Neuss
    [stadtteil] => 
    [courtage_text] => Bei Erwerb dieser Immobilie steht uns als allein beauftragtem Makler das ortsübliche Maklerhonorar in Höhe von 3,57 % des  Kaufpreises inklusive der gesetzlichen Mehrwertsteuer zu. Diese Maklerprovision ist fällig und verdient mit dem Abschluss des Kaufvertrags. Bei Einfamilienhäusern und Eigentumswohnungen wurde mit dem Verkäufer eine Provisionsvereinbarung in gleicher Höhe vereinbart.
    [verfuegbar_ab] => 
    [nebenkosten] => 0
    [kaution] => 0
    [schlafzimmer] => 0
    [badezimmer] => 2
    [etage] => 
    [balkon] => 1
    [bad] => 
    [badewanne] => 
    [dusche] => 
    [bad_fenster] => 
    [beschreibung] => Dieses charmante und flexibel nutzbare Doppelhaushälfe bietet ideale Voraussetzungen für Familien, Mehrgenerationenwohnen oder die Kombination aus Wohnen und Arbeiten unter einem Dach.

Auf einem großzügigen Grundstück von ca. 675 m² erstreckt sich eine Wohnfläche von rund 112,65 m², die sich dank des durchdachten Grundrisses vielseitig gestalten und an unterschiedliche Wohnbedürfnisse anpassen lässt. Ob als klassisches Einfamilienhaus mit viel Platz oder als Zweifamilienlösung – hier eröffnen sich zahlreiche Nutzungsmöglichkeiten.


Das Erdgeschoss bildet den zentralen Lebensmittelpunkt des Hauses. Der großzügige Wohnbereich schafft eine einladende Atmosphäre und bietet viel Platz für gemütliche Stunden mit Familie und Freunden. Angrenzend befindet sich ein separates Esszimmer, das sich hervorragend für gemeinsame Mahlzeiten und gesellige Abende eignet. Ergänzt wird diese Etage durch ein weiteres Zimmer, das flexibel als Arbeitszimmer, Gästezimmer oder Hobbyraum genutzt werden kann. Die durchdachte Raumstruktur ermöglicht sowohl offene Wohnkonzepte als auch klare Rückzugsbereiche.

Im 1. OG eröffnet sich ein besonders vielseitig nutzbarer Wohnbereich. Neben dem Schlafzimmer mit angrenzendem Ankleidebereich stehen hier zwei zusätzliche Zimmer zur Verfügung. Diese eignen sich ideal als Kinderzimmer, Spielbereich oder auch als separate Rückzugsräume für Jugendliche. Gleichzeitig bietet diese Raumaufteilung hervorragende Voraussetzungen für Mehrgenerationenwohnen, beispielsweise für ein gemeinsames Leben mit Eltern oder erwachsenen Kindern unter einem Dach.

Durch die klare Trennung von Wohn- und Rückzugsbereichen entsteht ein harmonisches Wohnkonzept, das sowohl Privatsphäre als auch gemeinschaftliches Familienleben ermöglicht.

Insgesamt präsentiert sich die Immobilie als flexibel nutzbares Zuhause mit viel Entwicklungspotenzial, das unterschiedliche Lebensmodelle – von der klassischen Familie bis hin zum Mehrgenerationenhaushalt ideal unterstützt.

Ein besonderes Highlight ist der große, nach Süden ausgerichtete Garten, der von der überdachten Terrasse aus direkt zugänglich ist und zu sonnigen Stunden im Freien, entspannten Familiennachmittagen und geselligen Abenden einlädt. Die Terrasse bietet dabei einen geschützten und komfortablen Außenbereich, der nahezu ganzjährig genutzt werden kann. Ergänzt wird das attraktive Außenangebot durch einen Balkon, der einen weiteren privaten Rückzugsort im Freien schafft.

Das Haus ist voll unterkellert und verfügt somit über zusätzliche, wertvolle Nutz- und Abstellflächen, die vielseitig verwendet werden können – beispielsweise als Hobby-, Hauswirtschafts- oder Lagerräume. Abgrundet wird das Angbot durch die großzügige Garage mit angrenzendem Bereich mit viel Platz für Ihre Gartenutensilien.

Vor rund zehn Jahren wurde die Immobilie umfassend renoviert und saniert, sodass sie sich heute in einem gepflegten und zeitgemäßen Zustand präsentiert und eine solide Basis für die kommenden Jahre bietet.

Diese Immobilie verbindet großzügiges Grundstück, flexible Wohnkonzepte, überdachte Terrasse, Balkon und einen weitläufigen Südgarten in idealer Weise – ein Zuhause mit viel Potenzial für unterschiedliche Lebensmodelle.
    [lagebeschreibung] => Neuss – Die Stadt am Rhein

Die Stadt Neuss, einst von den Römern gegründet, bietet heute mit ca. 160.000 Einwohnern im Stadtgebiet und über 400.000 Bewohnern des Rhein-Kreises-Neuss für alle Facetten des Lebens sehr gute Möglichkeiten. Auch die Wirtschaftskraft von Düsseldorf und dem Kölner Raum kommt der Neusser Wirtschaft und den Menschen sehr zugute. 

Mit dem Pkw erreichen Sie sowohl Düsseldorf, das Neusser Umland, Kaarst, Grevenbroich, Korschenbroich, Mönchengladbach, den Großraum Köln und auch das Ruhrgebiet in kurzer Zeit. Da im Neusser Stadtgebiet Anschlussstellen an die Autobahnen A46-Wuppertal-Aachen, A52-Düsseldorf-Roermond bzw. A57-Köln-Goch in wenigen Pkw-Minuten vorhanden sind, sind die genannten Gebiete sehr schnell erreichbar. 

Auch über die Bahn- bzw. S-Bahn- und Regio-Bahnanbindungen sind diese Städte sehr gut angebunden. Die S-Bahnverbindung (S11) von Neuss über Düsseldorf zum Flughafen Düsseldorf-International bietet den Anschluss an weiter entfernte Ziele auf kurzem Weg. Innerhalb von Neuss bieten Straßenbahnen und diverse Buslinien die notwendige Mobilität bis in die äußeren Stadteile und nach Düsseldorf, Kaarst, Dormagen und Grevenbroich. Somit finden Sie hier hervorragende öffentliche Verkehrsanbindungen.

In Neuss bzw. den umliegenden Stadtteilen finden Sie eine große Anzahl an Kindergärten, Kindertagesstätten, Grundschulen und weiterführenden Schulen. Neben Berufsschulen und Bildungszentren existiert in Neuss die FOM, die Hochschule für Berufstätige. Alle diese Schulen sind über öffentliche Verkehrsmittel sehr gut zu erreichen.

In Neuss finden Sie vielfältige Freizeitmöglichkeiten, unter anderem die weit über Neuss bekannte Skihalle, die sehr bekannte Raketenstation und Museumsinsel Hombroich und den Kinder-Bauernhof in Neuss-Selikum. Über die TG-Neuss bestehen diverse Sportmöglichkeiten von der Akrobatik bis Zumba. Die Mannschaften des THC-Schwarz-Weiß Neuss und der bekannte Tennis-Club Blau-Weiß-Neuss sind nur wenige Beispiele für die Sportvielfalt in Neuss. Auch für Handball, Rudern, Kanufahren, Radsport und Lauf-Events ist Neuss bekannt. In Neuss finden Sie mit Freibädern und erneuerten Hallenbäder sowie einem großzügigen Wellnesspark „WellNeuss“ weitere Freizeitmöglichkeiten. Die Eissporthalle und der renommierte Golfplatz „Hummelbachaue“ runden das Angebot hier ab. 
Weitere Infos über Neuss finden Sie auf www.neuss.de

Neuss-Reuschenberg gilt als eines der beliebtesten Wohnviertel in Neuss. Reuschenberg liegt im Süden von Neuss und ist hervorragend an die Neusser Innenstadt angebunden. Alle Einkaufsmöglichkeiten befinden sich in Reuschenberg selbst und in ca. 1500 m Entfernung im Einkaufszentrum „Moselstraße“. Hier finden Sie neben einem großen ALDI-Discount einen großen EDEKA-Markt, einen DM-Drogeriemarkt und einen MediaMarkt. Zusätzlich gibt es hier eine Bäckerei, einen Schuhdiscounter und ein Sportgeschäft. Nur ca. 200m vom Objekt entfernt, wurde auf dem Reuschenberger Kirmesplatz ein neuwertiges kleines Einkaufscenter der „Reuschenberger Markt“ mit einem Vollversorger REWE-Markt, einem Fitnessstudio, einer Apotheke, einer Dm-Filiale und einem Ärztehaus errichtet. Dieses Zentrum bietet den Frischeeinkauf direkt vor der Tür. Alle weiteren Einkaufsmöglichkeiten liegen in der nahen Innenstadt von Neuss und sind bequem auch mit dem Fahrrad, dem Auto oder den öffentlichen Verkehrsmitteln zu erreichen.
    [sonstiges] => 
    [ausstattung] => 
    [verwalter_name] => Kruczek
    [verwalter_vorname] => Alexander
    [verwalter_tel] => 0213170990
    [verwalter_mobil] => 01638468005
    [verwalter_email] => 
    [active] => 
    [kaufpreis] => 589000
    [verwalter_fax] => 02131 70 99 29
    [wohnung] => 1
    [gewerbe] => 
    [anlage] => 
    [kauf] => 1
    [haustyp] => DOPPELHAUSHAELFTE
    [zimmertyp] => 
    [buerotyp] => 
    [hallentyp] => 
    [einzelhandeltyp] => 
    [gastrotyp] => 
    [grundstuecktyp] => 
    [verkaufstyp] => 
    [objekt_alter] => 
    [mieteinnahmen_soll] => 0
    [mieteinnahmen_faktor] => 0
    [grundstuecksflaeche] => 675
    [einbaukueche] => 1
    [aufzug] => 
    [senioren] => 
    [wohnungstyp] => 
    [wohnflaeche] => 112.65
    [kurzbeschreibung] => 
    [zustand] => VOLL_SANIERT
    [keller] => 
    [objektart] => 
    [gaeste_wc] => 
    [verwalter_email_zentrale] => kruczek@gille-immobilien.de
    [verwalter_firma] => Gille Immobilien e.K.
    [verwalter_strasse] => Erftstraße
    [verwalter_hausnummer] => 60
    [verwalter_plz] => 41460
    [verwalter_ort] => Neuss
    [strasse] => Bergheimer Straße
    [hausnummer] => 535
    [object_id] => H26139
    [qualitaet_der_austattung] => 
    [gewerbeflaeche] => 0
    [anzahl_etagen] => 2
    [letzte_modernisierung] => 
    [denkmalgeschuetzt] => 
    [barrierefrei] => 
    [energiepass_art] => BEDARF
    [mieteinnahmen_ist] => 0
    [top_angebot] => 1
    [flaeche] => 0
    [miete_pacht] => 
    [vermarktungsart] => 
    [nutzungsart] => 
    [investment] => 
    [provision] => 3,57% des Kaufpreises incl. 19 % MwSt.
    [panorama] => 
    [stp_carport] => 0
    [stp_duplex] => 0
    [stp_freiplatz] => 0
    [stp_garage] => 0
    [stp_parkhaus] => 0
    [stp_tiefgarage] => 0
    [stp_sonstige] => 0
    [wg_geeignet] => 
    [gartennutzung] => 1
    [vermietet] => 
    [hausgeld] => 
    [boden] => 
    [titelbild] => Array
        (
            [bin] => Array
                (
                    [0] => m"$񦨬kC
                )

            [value] => Array
                (
                    [0] => 921ed66d-2224-11f1-a6a8-ac1f6be8430c
                )

            [path] => Array
                (
                    [0] => files/openimmo_bilder/4712421-QFK8F1GE42Cu5U6fPtrRpN7S-IMG_7010.JPG
                )

        )

    [bilder] => Array
        (
            [bin] => Array
                (
                    [0] => [(rG"$񦨬kC
                    [1] => [(r1"$񦨬kC
                    [2] => ֶ"$񦨬kC
                    [3] => !+"$񦨬kC
                    [4] => !+"$񦨬kC
                    [5] => օ"$񦨬kC
                    [6] => !+d"$񦨬kC
                    [7] => !+v"$񦨬kC
                    [8] => ֕"$񦨬kC
                    [9] => !+}"$񦨬kC
                    [10] => ֬"$񦨬kC
                    [11] => ~"$񦨬kC
                    [12] => !+"$񦨬kC
                    [13] => v"$񦨬kC
                    [14] => !+"$񦨬kC
                    [15] => ֍"$񦨬kC
                    [16] => !+"$񦨬kC
                    [17] => !+"$񦨬kC
                    [18] => Q"$񦨬kC
                    [19] => !+"$񦨬kC
                    [20] => [(rP"$񦨬kC
                    [21] => ֱ"$񦨬kC
                    [22] => #"$񦨬kC
                )

            [value] => Array
                (
                    [0] => 5b287247-2224-11f1-a6a8-ac1f6be8430c
                    [1] => 5b287231-2224-11f1-a6a8-ac1f6be8430c
                    [2] => 921ed6b6-2224-11f1-a6a8-ac1f6be8430c
                    [3] => 92212b89-2224-11f1-a6a8-ac1f6be8430c
                    [4] => 92212bab-2224-11f1-a6a8-ac1f6be8430c
                    [5] => 921ed685-2224-11f1-a6a8-ac1f6be8430c
                    [6] => 92212b64-2224-11f1-a6a8-ac1f6be8430c
                    [7] => 92212b76-2224-11f1-a6a8-ac1f6be8430c
                    [8] => 921ed695-2224-11f1-a6a8-ac1f6be8430c
                    [9] => 92212b7d-2224-11f1-a6a8-ac1f6be8430c
                    [10] => 921ed6ac-2224-11f1-a6a8-ac1f6be8430c
                    [11] => 921ed67e-2224-11f1-a6a8-ac1f6be8430c
                    [12] => 92212bb5-2224-11f1-a6a8-ac1f6be8430c
                    [13] => 921ed676-2224-11f1-a6a8-ac1f6be8430c
                    [14] => 92212b93-2224-11f1-a6a8-ac1f6be8430c
                    [15] => 921ed68d-2224-11f1-a6a8-ac1f6be8430c
                    [16] => 92212bb0-2224-11f1-a6a8-ac1f6be8430c
                    [17] => 92212b8e-2224-11f1-a6a8-ac1f6be8430c
                    [18] => 921ed651-2224-11f1-a6a8-ac1f6be8430c
                    [19] => 92212b83-2224-11f1-a6a8-ac1f6be8430c
                    [20] => 5b287250-2224-11f1-a6a8-ac1f6be8430c
                    [21] => 921ed6b1-2224-11f1-a6a8-ac1f6be8430c
                    [22] => 922302cf-2224-11f1-a6a8-ac1f6be8430c
                )

            [path] => Array
                (
                    [0] => files/openimmo_bilder/4712421-BpzUXud4ZB7Xy6me6xWNMXM6-IMG_7021.JPG
                    [1] => files/openimmo_bilder/4712421-7CxKe37v6b6UPC4XMGBwdpKo-IMG_7032.JPG
                    [2] => files/openimmo_bilder/4712421-2Sv2m3efe5cY4QhBh7jK8mwy-IMG_7036.JPG
                    [3] => files/openimmo_bilder/4712421-nLrR53B7TRyzvqFQXVZfXz8z-IMG_7033.JPG
                    [4] => files/openimmo_bilder/4712421-c653BqBw1e8hi3yCrpTfUVYU-IMG_7035.JPG
                    [5] => files/openimmo_bilder/4712421-NdgP4E4PZQtN7d16xVX96fZt-IMG_7013.JPG
                    [6] => files/openimmo_bilder/4712421-yhBAgZk1VArdQMkKa7HEM632-IMG_7017.JPG
                    [7] => files/openimmo_bilder/4712421-s6TEtcdpPDfPy2AYhkSRtjFQ-IMG_7041.JPG
                    [8] => files/openimmo_bilder/4712421-5nXJW8PE4hpbdT5kdGCBSDuq-IMG_7018.JPG
                    [9] => files/openimmo_bilder/4712421-rGYxatfqLMNkkM5fKdtH1eCV-IMG_7069.JPG
                    [10] => files/openimmo_bilder/4712421-5N4mhQAiMJdPunacc51osKXz-IMG_7022.JPG
                    [11] => files/openimmo_bilder/4712421-P3PR5FSMenXefBnwf85WFYdY-IMG_7023.JPG
                    [12] => files/openimmo_bilder/4712421-RihzpLdNzVNZiNkVtD9ycpM9-IMG_7047.JPG
                    [13] => files/openimmo_bilder/4712421-QBTnkrTERESD3VBpwRKr6sSY-IMG_7048.JPG
                    [14] => files/openimmo_bilder/4712421-fm7LwTZJ9M9yEb9DABosaMrQ-IMG_7050.JPG
                    [15] => files/openimmo_bilder/4712421-6ab8RjzmXE2SWASjWuHwdQcF-IMG_7057.JPG
                    [16] => files/openimmo_bilder/4712421-Xjh4DUpECsXtEXsh9k5nKQ3m-IMG_7060.JPG
                    [17] => files/openimmo_bilder/4712421-m8PNSHMib3ZaNAivExhXnAoX-IMG_7064.JPG
                    [18] => files/openimmo_bilder/4712421-QyFdqb5eLSJUrPhUFD1p1V5H-EG.jpg
                    [19] => files/openimmo_bilder/4712421-p5PD7F8ZLRGxQuf1PphyaM8m-DG.jpg
                    [20] => files/openimmo_bilder/4712421-C8QgcKTwdAJwiemY2kDZ37pg-Spitzboden.jpg
                    [21] => files/openimmo_bilder/4712421-2mv9MUqoSUBECtHWjpFFfPbr-1. UG.jpg
                    [22] => files/openimmo_bilder/4712421-zwkfuatKrvDA8XSeDPVddaQZ-Lageplan.png
                )

        )

    [grundrisse] => Array
        (
            [bin] => Array
                (
                )

            [value] => Array
                (
                )

            [path] => Array
                (
                )

        )

    [energiepass_datum] => 08.03.2036
    [energiepass_mixed] => 
    [wohneinheiten] => 0
    [vermietbare_flaeche] => 0.00
    [zimmer] => 6
    [stp_freiplatz_kosten] => 0
    [stp_garage_kosten] => 0
    [energiepass_ausstelldatum] => 2026-03-09
    [wertklasse] => D
    [energiepass_endenergiebedarf] => 120
)
    
Großzügiges Zuhause mit flexibler Raumaufteilung – perfekt für Familien oder Mehrgenerationenwohnen
Immobilie kaufen

Großzügiges Zuhause mit flexibler Raumaufteilung – perfekt für Familien oder Mehrgenerationenwohnen

Großzügiges Zuhause mit flexibler Raumaufteilung – perfekt für Familien oder Mehrgenerationenwohnen

Objekt-ID H26139

Immobilie kaufen

41466 Neuss

  • Grundstück: 675m²
  • Wohnfläche: 112,65m²
  • Zimmer: 6
  • Kaufpreis: 589.000€
  • Objektangaben

    • Haustyp: DOPPELHAUSHAELFTE
    • Baujahr: 1957
    • Zustand: VOLL_SANIERT
    • Provision: 3,57% des Kaufpreises incl. 19 % MwSt.
  • Energieausweis

    120
    • Energiekennwert: 120kWh/(m²a)
    • Energieausweis: BEDARF
    • Effizienzklasse: D
    • Ausstellungsdatum: 09.03.2026
    • Gültig bis: 08.03.2036
    • Baujahr: 1957
  • Beschreibung

    Dieses charmante und flexibel nutzbare Doppelhaushälfe bietet ideale Voraussetzungen für Familien, Mehrgenerationenwohnen oder die Kombination aus Wohnen und Arbeiten unter einem Dach.

    Auf einem großzügigen Grundstück von ca. 675 m² erstreckt sich eine Wohnfläche von rund 112,65 m², die sich dank des durchdachten Grundrisses vielseitig gestalten und an unterschiedliche Wohnbedürfnisse anpassen lässt. Ob als klassisches Einfamilienhaus mit viel Platz oder als Zweifamilienlösung – hier eröffnen sich zahlreiche Nutzungsmöglichkeiten.

    Das Erdgeschoss bildet den zentralen Lebensmittelpunkt des Hauses. Der großzügige Wohnbereich schafft eine einladende Atmosphäre und bietet viel Platz für gemütliche Stunden mit Familie und Freunden. Angrenzend befindet sich ein separates Esszimmer, das sich hervorragend für gemeinsame Mahlzeiten und gesellige Abende eignet. Ergänzt wird diese Etage durch ein weiteres Zimmer, das flexibel als Arbeitszimmer, Gästezimmer oder Hobbyraum genutzt werden kann. Die durchdachte Raumstruktur ermöglicht sowohl offene Wohnkonzepte als auch klare Rückzugsbereiche.

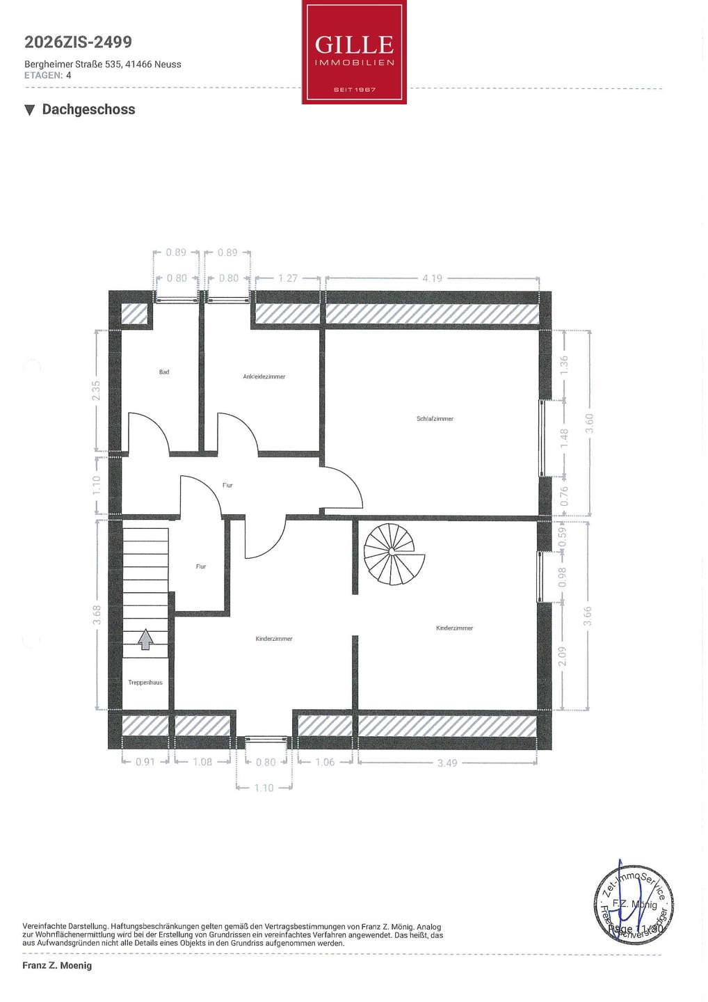
    Im 1. OG eröffnet sich ein besonders vielseitig nutzbarer Wohnbereich. Neben dem Schlafzimmer mit angrenzendem Ankleidebereich stehen hier zwei zusätzliche Zimmer zur Verfügung. Diese eignen sich ideal als Kinderzimmer, Spielbereich oder auch als separate Rückzugsräume für Jugendliche. Gleichzeitig bietet diese Raumaufteilung hervorragende Voraussetzungen für Mehrgenerationenwohnen, beispielsweise für ein gemeinsames Leben mit Eltern oder erwachsenen Kindern unter einem Dach.

    Durch die klare Trennung von Wohn- und Rückzugsbereichen entsteht ein harmonisches Wohnkonzept, das sowohl Privatsphäre als auch gemeinschaftliches Familienleben ermöglicht.

    Insgesamt präsentiert sich die Immobilie als flexibel nutzbares Zuhause mit viel Entwicklungspotenzial, das unterschiedliche Lebensmodelle – von der klassischen Familie bis hin zum Mehrgenerationenhaushalt ideal unterstützt.

    Ein besonderes Highlight ist der große, nach Süden ausgerichtete Garten, der von der überdachten Terrasse aus direkt zugänglich ist und zu sonnigen Stunden im Freien, entspannten Familiennachmittagen und geselligen Abenden einlädt. Die Terrasse bietet dabei einen geschützten und komfortablen Außenbereich, der nahezu ganzjährig genutzt werden kann. Ergänzt wird das attraktive Außenangebot durch einen Balkon, der einen weiteren privaten Rückzugsort im Freien schafft.

    Das Haus ist voll unterkellert und verfügt somit über zusätzliche, wertvolle Nutz- und Abstellflächen, die vielseitig verwendet werden können – beispielsweise als Hobby-, Hauswirtschafts- oder Lagerräume. Abgrundet wird das Angbot durch die großzügige Garage mit angrenzendem Bereich mit viel Platz für Ihre Gartenutensilien.

    Vor rund zehn Jahren wurde die Immobilie umfassend renoviert und saniert, sodass sie sich heute in einem gepflegten und zeitgemäßen Zustand präsentiert und eine solide Basis für die kommenden Jahre bietet.

    Diese Immobilie verbindet großzügiges Grundstück, flexible Wohnkonzepte, überdachte Terrasse, Balkon und einen weitläufigen Südgarten in idealer Weise – ein Zuhause mit viel Potenzial für unterschiedliche Lebensmodelle.

  • Ausstattung

  • Lage

    Neuss – Die Stadt am Rhein

    Die Stadt Neuss, einst von den Römern gegründet, bietet heute mit ca. 160.000 Einwohnern im Stadtgebiet und über 400.000 Bewohnern des Rhein-Kreises-Neuss für alle Facetten des Lebens sehr gute Möglichkeiten. Auch die Wirtschaftskraft von Düsseldorf und dem Kölner Raum kommt der Neusser Wirtschaft und den Menschen sehr zugute.

    Mit dem Pkw erreichen Sie sowohl Düsseldorf, das Neusser Umland, Kaarst, Grevenbroich, Korschenbroich, Mönchengladbach, den Großraum Köln und auch das Ruhrgebiet in kurzer Zeit. Da im Neusser Stadtgebiet Anschlussstellen an die Autobahnen A46-Wuppertal-Aachen, A52-Düsseldorf-Roermond bzw. A57-Köln-Goch in wenigen Pkw-Minuten vorhanden sind, sind die genannten Gebiete sehr schnell erreichbar.

    Auch über die Bahn- bzw. S-Bahn- und Regio-Bahnanbindungen sind diese Städte sehr gut angebunden. Die S-Bahnverbindung (S11) von Neuss über Düsseldorf zum Flughafen Düsseldorf-International bietet den Anschluss an weiter entfernte Ziele auf kurzem Weg. Innerhalb von Neuss bieten Straßenbahnen und diverse Buslinien die notwendige Mobilität bis in die äußeren Stadteile und nach Düsseldorf, Kaarst, Dormagen und Grevenbroich. Somit finden Sie hier hervorragende öffentliche Verkehrsanbindungen.

    In Neuss bzw. den umliegenden Stadtteilen finden Sie eine große Anzahl an Kindergärten, Kindertagesstätten, Grundschulen und weiterführenden Schulen. Neben Berufsschulen und Bildungszentren existiert in Neuss die FOM, die Hochschule für Berufstätige. Alle diese Schulen sind über öffentliche Verkehrsmittel sehr gut zu erreichen.

    In Neuss finden Sie vielfältige Freizeitmöglichkeiten, unter anderem die weit über Neuss bekannte Skihalle, die sehr bekannte Raketenstation und Museumsinsel Hombroich und den Kinder-Bauernhof in Neuss-Selikum. Über die TG-Neuss bestehen diverse Sportmöglichkeiten von der Akrobatik bis Zumba. Die Mannschaften des THC-Schwarz-Weiß Neuss und der bekannte Tennis-Club Blau-Weiß-Neuss sind nur wenige Beispiele für die Sportvielfalt in Neuss. Auch für Handball, Rudern, Kanufahren, Radsport und Lauf-Events ist Neuss bekannt. In Neuss finden Sie mit Freibädern und erneuerten Hallenbäder sowie einem großzügigen Wellnesspark „WellNeuss“ weitere Freizeitmöglichkeiten. Die Eissporthalle und der renommierte Golfplatz „Hummelbachaue“ runden das Angebot hier ab.

    Weitere Infos über Neuss finden Sie auf www.neuss.de

    Neuss-Reuschenberg gilt als eines der beliebtesten Wohnviertel in Neuss. Reuschenberg liegt im Süden von Neuss und ist hervorragend an die Neusser Innenstadt angebunden. Alle Einkaufsmöglichkeiten befinden sich in Reuschenberg selbst und in ca. 1500 m Entfernung im Einkaufszentrum „Moselstraße“. Hier finden Sie neben einem großen ALDI-Discount einen großen EDEKA-Markt, einen DM-Drogeriemarkt und einen MediaMarkt. Zusätzlich gibt es hier eine Bäckerei, einen Schuhdiscounter und ein Sportgeschäft. Nur ca. 200m vom Objekt entfernt, wurde auf dem Reuschenberger Kirmesplatz ein neuwertiges kleines Einkaufscenter der „Reuschenberger Markt“ mit einem Vollversorger REWE-Markt, einem Fitnessstudio, einer Apotheke, einer Dm-Filiale und einem Ärztehaus errichtet. Dieses Zentrum bietet den Frischeeinkauf direkt vor der Tür. Alle weiteren Einkaufsmöglichkeiten liegen in der nahen Innenstadt von Neuss und sind bequem auch mit dem Fahrrad, dem Auto oder den öffentlichen Verkehrsmitteln zu erreichen.